CT1 - Kontener mieszkalny - wariant 19
całoroczny, sensowny i solidny
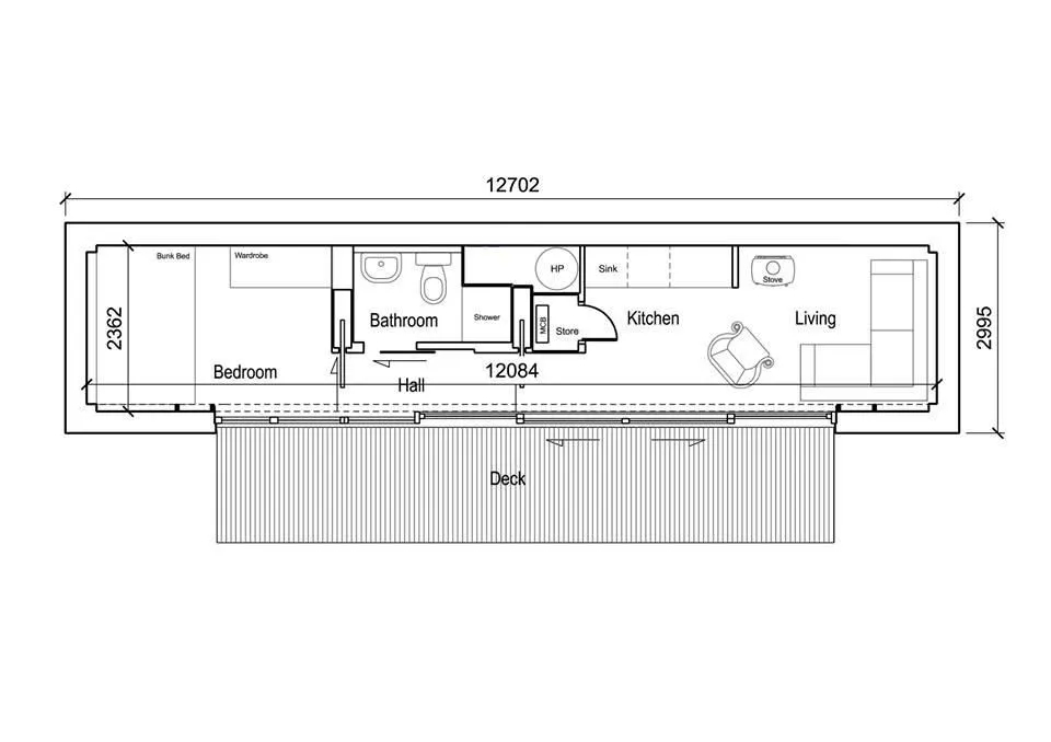
CT1 - Nowoczesny kontener mieszkalny „Ardizja” - wariant19
CT1 - Nowoczesny kontener mieszkalny „Ardizja” - wariant19
Zaprojektowany z myślą zarówno o współczesnych gustach, jest świetną opcją na zbudowanie domu eleganckiego, ale pełnego charakteru.
Chciałbyś poznać więcej szczegółów,
wprowadzić modyfikacje do projektu,
a może obejrzeć kontener osobiście?
Wystarczy, że dasz znać mailowo [email protected]
Specyfikacja:
- kontener całoroczny z łazienką WC
- trwałe materiały odporne na warunki pogodowe
- mocny szkielet i łączenia
- nie wymaga obsługi lub opróżniania - wystarczy podłączyć wodę, ścieki i prąd
- obróbka blacharska zew. i wew.
- skuteczne ocieplenie płytami warstwowymi 3×6 m,
- wys. wewnątrz kontenera 2,4 m oraz spadkiem na 2,3 m
- płyty izolacyjne I gatunku z rdzeniem z pianki poliuretanowej
- ściany i sufit 100 mm grubości, przenikalność term. 0,22 W/m2K z rdzeniem z pianki poliuretanowej
- płyta obornicka pokryta podbitką metalu ocynkowanego PCV
- rama kształtowniki zimnogięte 3 mm
- podłoga 4 warstwy:
- a) metalowy szkielet
- b) wełna mineralna o grubości 110 mm
- c) wodoodporna płyta OSB o grubości 22 mm (odporna na wilgoć)
- d) wykładzina PCV wzór drewno (odporna na ścieranie)
- podłoga z płytą warstwową z rdzeniem z pianki poliuretanowej o grubości 80mm i przenikalności termicznej 0,38 W/m2K
- okna plastikowe z białą ramą PCV, nieotwierane, 2 sztuki (200×100 cm lub 120×120 cm) lub 2 okienka uchylne 50×50 cm (przeszklenie wg normy R43, rozmieszczenie dowolne)
- drzwi wejściowe przeszklone lub pełne metalowe 900×2000 mm
- pełna instalacja elektryczna 400 V z głównym wyłącznikiem 25 A (2 gniazda 230 V, 3 podwójne sufitowe lampy LED, 2 włącznik natynkowy, 1 rozdzielnia z 4 obwodami elektrycznymi, przyłącze zewnętrzne, gniazdo 5×32)
- drzwi z zamkiem na klucz
- umywalka z kranem na życzenie klienta szafka łazienkowa
- sedes kompaktowy
- ścienny dozownik mydła w płynie
- lustro
- instalacja wodno-kanalizacyjna
- instalacja odpływowa
Opcje dodatkowe / na życzenie
- ocynkowanie ramy
- konfiguracja kontenera o innych wymiarach
- inne podłogi, np. panele
- umywalka, WC, bojler, podgrzewacz wody itp.
- płyta OSB i wykładzina PCV w dowolnym kolorze
- kratki wentylacyjne
- brodzik prysznicowy 100x80cm
- ścianki działowe
- alarm
- klimatyzacja i dodatkowe elementy klimatyzacji
- dodatkowe okna i witryny
- oświetlenie zewn. z instalacją (oświetlenie + gniazdka)
- drzwi szklane, blaszane, podwójne
- rolety antywłamaniowe
- poddasze
- grzejniki elektryczne
- meble
- grzejnik
- przepływowy podgrzewacz wody
- zbudowanie przyczepy na bazie kontenera
- kolory wg podstawowej palety RAL producentów płyt:
(przykładowe kolory podst.: 7035, 7016, 9002, 9007, 9010) - modyfikacje indywidualne wg potrzeb klienta
WAŻNE INFORMACJE PRZED ZAKUPEM
- kontener przeznaczony do dalszej adaptacji
- przed zakupem zapytaj o dostępność modelu
(nasza oferta cały czas się zmienia, a popularne modele
znikają szybko; dziękujemy za dopytanie się!) - do ceny netto należy doliczyć 23% VAT
Contechnic to kontenery, na których możesz polegać
— również na modelu CT1 - Nowoczesny kontener mieszkalny „Ardizja” - wariant 19. Zapraszamy do kontaktu!
Zapytaj o ten kontener
Chciałbyś poznać więcej szczegółów,
wprowadzić modyfikacje do projektu,
a może obejrzeć kontener osobiście?
Wystarczy, że dasz znać:
CT1 – Nowoczesny kontener mieszkalny „Ardizja” – wariant 19
Może spodoba się również…
-

CT1 – Pawilon mieszkalny „Dalia” – wariant 4
-

CT1 – Domek mobilny „Krokus” – wariant 21
-

CT1 – Kontener mieszkalny z kuchnią i łazienką „Amarylis” – wariant 15
-

CT1 – Kontener mieszkalny „Irys” – wariant 5
-

CT1 – Domek mobilny „Aksamitka” – wariant 2
-

CT1 – Kontener mieszkalny na działkę „Chaber” – wariant 7
-

CT1 – Barak mieszkalny „Cykoria” – wariant 3
-

CT1 – Kontener mieszkalny z kuchnią i łazienką „Szafirek” – wariant 10
Opinie
Na razie nie ma opinii o produkcie.